Quy trình thiết kế móng cọc nhà dân đóng vai trò vô cùng quan trọng trong việc tạo nền tảng vững chắc cho toàn bộ công trình về lâu về dài. Từ bước khảo sát địa hình, lựa chọn loại cọc đến tính toán kết cấu và cuối cùng là thi công, tất cả đều cần được thực hiện một cách chính xác để đảm bảo độ bền, an toàn và hiệu quả sử dụng lâu dài. Cùng kiến trúc Uy Vũ tìm hiểu thêm về kinh nghiệm thiết kế móng cọc nhà dân nhé!
Thiết kế móng cọc nhà dân là gì?
Thiết kế móng cọc nhà dân là quá trình tính toán và lựa chọn móng sử dụng hệ thống cọc bê tông cốt thép nhằm truyền tải trọng của ngôi nhà xuống các lớp đất sâu và ổn định hơn. Móng cọc là một loại móng phổ biến, thường được áp dụng cho các công trình được thi công trên các nền đất yếu, dễ bị sụt lún và sạt lở.
Móng cọc hoạt động bằng cách truyền tải trọng của ngôi nhà xuống sâu trong các lớp đất đá và xung quanh công trình. Vì thế, phần đất đá dưới móng cọc sẽ được nén lại, hỗ trợ nền đất ổn định hơn, đảm bảo độ chịu lực, chắc chắn, an toàn và tránh được tình trạng sụt lún, nghiêng lệch.

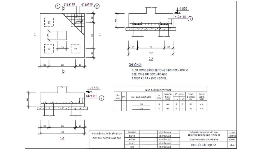
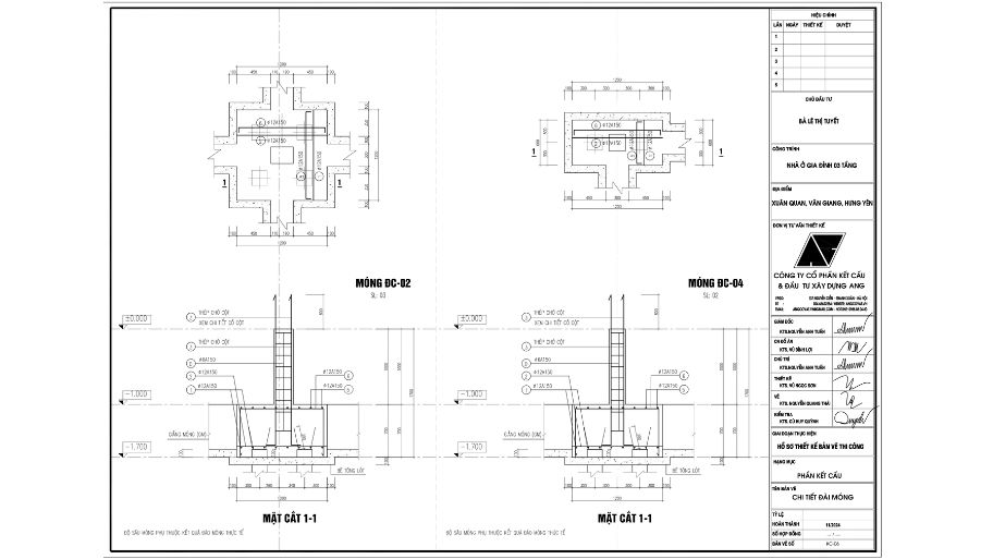
Khi thiết kế móng cọc nhà dân, bạn sẽ lưu ý đến hai phần chính là: cọc và đài cọc. Cọc sẽ có thân trụ dài, được đóng vào lòng đất. Một số loại cọc phổ biến: cọc gỗ, cọc thép, cọc bê tông cốt thép,… Các cọc được kết nối với nhau thông qua đài cọc, để phân bố tải trọng của công trình lên hệ thống cọc.
Ưu điểm và nhược điểm của thiết kế móng cọc nhà dân
Thiết kế móng cọc nhà dân sẽ có những ưu điểm nổi bật sau:
- Móng cọc đảm bảo được độ chắc chắn cao vì loại móng này sâu, thích hợp với các khu vực có nền đất yếu và nhà cao tầng
- Thiết kế móng cọc nhà dân thì công trình nhà bạn sẽ có độ bền cao và khả năng chịu tải tốt
- Nếu ban đầu, ép cọc chịu đủ tải trọng, gia chủ có thể dễ dàng nâng thêm tầng cho các công trình.

Bên cạnh những điểm mạnh thì thiết kế móng cọc nhà dân vẫn còn tồn tại một số hạn chế như sau:
- Chi phí thi công, thiết kế móng cọc nhà dân có thể tăng cao tùy theo độ sâu cọc và số lượng tim cọc
- Một số khu vực với nền đất quá cứng không thể ép cọc
- Trong quá trình thi công móng cọc, thì có thể ảnh hưởng đến kết cấu móng của các ngôi nhà xung quanh.
Khi nào nên lựa chọn móng cọc?
Khi lựa chọn thiết kế móng cọc nhà dân cho “tổ ấm” của mình bạn cần xem xét địa hình của nơi xây dựng công trình. Các đơn vị sẽ thường quyết định chọn thiết kế móng cọc nhà dân trong trường hợp các nền đất kém kiên cố như:
- Đất xây dựng nhà yếu, không thể đào sâu xuống tới độ sâu cần thiết
- Công trình có tải trọng tương đối nặng
- Nền đất có thể đối diện với các nguy cơ thay đổi do dòng nước lưu chuyển gây xói mòn, sạt lở tại vị trí gần lòng sông, bờ biển,…
- Nhà có thể được thi công gần các kênh nước, hệ thống thoát nước sâu,…

Quy trình thi công móng cọc đúng kỹ thuật và an toàn
Dưới đây, Uy Vũ sẽ chia sẻ với các bạn quy trình thi công, thiết kế móng cọc nhà dân chuẩn đảm bảo đầy đủ các bước từ bước chuẩn bị ban đầu đến bước tiến hành thi công.
Chuẩn bị mặt bằng trước thi công móng cọc
Trước khi đi vào bước thiết kế móng cọc nhà dân, cần khảo sát địa chất để đánh giá điều kiện của môi trường và công tác thi công, tránh khỏi trường hợp rủi ro. Đồng thời, bạn cần kiểm tra và đảm bảo cọc đáp ứng đúng yêu cầu về kỹ thuật, chất lượng.

Các bước chuẩn bị cần thiết cho quá trình thi công
- Trước hết, kiểm tra, đánh giá khu đất sẽ tiến hành xây dựng công trình để đảm bảo các yêu cầu kỹ thuật đã an toàn
- Tiếp theo, định vị và giác móng các cọc cần ép xuống nền đất
- Cần đánh dấu các đường tâm trên cọc để thuận tiện cho việc cân chỉnh khi ép
- Nếu đất lún, hãy dùng gỗ chèn xuống trước giúp chân đế thêm ổn định và bằng phẳng trong lúc ép cọc.
- Chú ý lắp khung đế đúng vị trí.
- Thường xuyên kiểm tra và lắp đặt máy móc đảm bảo đúng quy trình, vị trí thiết kế để đảm hoạt động tốt và an toàn cho người thi công.

Trình tự thực hiện ép cọc bê tông cốt thép chi tiết
Bước 1:
- Bạn ép cọc C1, dựng cọc vào giá đỡ sao cho mũi cọc đặt đúng vị trí trên bản vẽ thiết kế, thẳng đứng, không xiêu vẹo
- Tiếp theo, gắn đầu trên của cọc ép vào thanh định hướng của thiết bị
- Sau đó, điều khiển áp lực lên các đầu cọc để cọc C1 đâm sâu xuống nền đất.
- Điều chỉnh lại những thanh cọc bị nghiêng.
Bước 2:
Trước khi ép, cần kiểm tra kỹ bề mặt hai đầu đoạn cọc để đảm bảo phẳng, không nứt vỡ. Sau đó, tiến hành lắp dựng đoạn cọc vào đúng vị trí ép sao cho trục cọc trùng với trục mũi cọc, đồng thời kiểm soát độ nghiêng không vượt quá 1%. Tiến hành gia tải lên đầu cọc tại điểm tiếp xúc, rồi hàn nối theo đúng quy định trong bản thiết kế. Trong quá trình này, không nên để mũi cọc dừng lâu trong lớp đất sét dẻo cứng vì có thể ảnh hưởng đến chất lượng mối hàn. Khi nhận thấy lực nén tăng đột ngột, chứng tỏ mũi cọc đã chạm lớp đất cứng hơn, cần giảm tốc độ ép để cọc thâm nhập từ từ, đồng thời duy trì lực ép trong giới hạn cho phép.
Bước 3:
Khi ép đến đoạn cọc cuối cùng ngang mặt đất, tiến hành cẩu đoạn lõi thép chụp lên đầu cọc và tiếp tục ép cho đến khi đạt độ sâu thiết kế. Sau khi hoàn thành, rút lõi thép ra để sử dụng cho các cọc tiếp theo.
Bước 4:
Sau khi hoàn thành việc ép một cọc, trượt giá ép trên khung đế đến vị trí kế tiếp. Trong trường hợp ép cọc móng, sử dụng cần trục để di chuyển dàn đế sang hố móng bên cạnh. Sau mỗi lần ép xong, di chuyển toàn bộ hệ khung ép sang vị trí mới để tiếp tục công việc.
Yêu cầu kỹ thuật khi hoàn thành:
- Chiều dài cọc ép xuống đất không được nhỏ hơn chiều dài tối thiểu theo thiết kế.
- Lực ép cuối cùng phải đạt giá trị thiết kế, duy trì ổn định trên đoạn xuyên có chiều sâu tối thiểu bằng 3 lần đường kính hoặc cạnh cọc.
- Tốc độ xuyên không vượt quá 1 cm/s.
Lưu ý quan trọng:
- Độ nghiêng của cọc không được vượt quá 1%.
- Sai số cao độ đầu cọc so với thiết kế không lớn hơn 75 mm.
- Khi ép cọc, cần duy trì lực ép tối đa của máy trước khi dừng để đảm bảo cọc đạt độ sâu và độ chặt yêu cầu.
Công đoạn khóa đầu cọc được thực hiện qua các bước sau:
- Điều chỉnh cao độ: Tiến hành cắt, chỉnh đầu cọc sao cho đúng với cao độ đã được xác định trong bản thiết kế.
- Xử lý lỗ ép: Trường hợp lỗ ép cọc không đạt độ côn tiêu chuẩn, cần tiến hành sửa lại hình dạng và làm nhám bề mặt bên trong để tăng khả năng liên kết.
- Gia cố quanh cọc: Dùng cát hạt trung để lấp đầy phần xung quanh cọc, đầm chặt đến cao độ lớp bê tông lót nhằm đảm bảo độ ổn định.
- Lắp đặt thép: Bố trí lưới thép ở vị trí đầu cọc theo thiết kế kỹ thuật.
- Đổ bê tông khóa: Sử dụng bê tông có mác không nhỏ hơn mác của bê tông đài móng, đồng thời trộn thêm phụ gia trương nở để đạt độ nở tối thiểu 0,02, giúp tăng khả năng bám dính và chống co ngót.

Trong trường hợp cọc được ngàm vào đài 10 cm, đầu cọc phải đạt cao độ –1,55 m so với mặt chuẩn thiết kế.
Gia công cốt thép đúng tiêu chuẩn
Gia tông cốt thép trải qua các các công đoạn như sau: sửa thẳng cốt thép bằng việc dùng búa đập, máy uốn hoặc tời. Tiếp theo, đánh gỉ bằng bàn chải sắt hoặc kéo qua đống cát hạt nhám. Sau nữa sẽ cắt và uốn theo yêu cầu thiết kế. Cuối cùng, nối các thanh thép hoặc tận dụng những đoạn thép ngắn để nối lại bằng dây thép mềm dẻo để tránh lãng phí.

Lắp dựng cốt pha cho móng cọc
- Bạn cần xác định các tim ngang, dọc của cột, vạch mặt cắt của cột lên mặt nền, sàn
- Sau đó, cần cố định chân cột với những đệm gỗ đã đặt trong khối móng để làm cữ dựng ván khuôn.
- Tiếp theo, bạn dựng từ các mảng phía trong đến mảng phía ngoài.
- Sau khi dựng xong, hãy đóng đinh liên kết 4 mảng với nhau, lắp các gông, nêm chặt.
- Để kiểm tra độ thẳng của cột hãy dùng dây
- Cuối cùng, để neo giữ, chống cho cột thẳng đứng.

Khi bạn lắp dựng thi công cốp pha dầm sàn cần đảm bảo những yêu cầu sau:
- Khung và cốt thép cần được liên kết chắc chắn, đảm bảo không bị biến dạng hay hư hỏng trong quá trình đổ bê tông
- Ván khuôn phải đúng hình dạng, kích thước theo thiết kế và đạt tiêu chuẩn kỹ thuật.
- Hệ thống chân chống, đà giáo cần lắp đặt đúng mật độ và đúng quy cách để đảm bảo khả năng chịu tải và giữ ổn định toàn bộ cốp pha trong quá trình thi công
- Các mối nối và bề mặt ván khuôn phải kín khít, không để rò rỉ nước xi măng khi đổ và đầm bê tông
- Cần kiểm tra khả năng chịu lực của vật liệu gỗ ván và đà giáo để đảm bảo an toàn trong quá trình thi công.
Đổ bê tông móng cọc bảo đảm chất lượng
Đổ bê tông lót móng:
- Bê tông lót móng chiều dày khoảng 10cm, giúp làm sạch đáy bê tông, giữ cho đáy có bề mặt bằng phẳng.
- Đào đất xong hết diện tích móng, vét sạch bùn đáy móng và đổ bê tông lót.
Đổ bê tông móng:
Trước khi tiến hành đổ bê tông, cần kiểm tra kỹ và làm sạch toàn bộ ván khuôn, cốt thép cũng như hệ thống sàn để loại bỏ bụi bẩn, dầu mỡ hoặc tạp chất có thể ảnh hưởng đến chất lượng bê tông. Tiếp đó, tưới ẩm bề mặt ván khuôn và sàn nhằm hạn chế hiện tượng hút nước từ hỗn hợp bê tông.
Khi mọi công tác chuẩn bị đã hoàn tất, tiến hành đổ bê tông đều khắp khu vực móng. Trong quá trình thi công, cần sử dụng đầm bàn hoặc đầm dùi để đầm kỹ, giúp bê tông được liên kết chặt, tăng độ đặc chắc và khả năng chịu lực.

Những sai lầm thường gặp cần tránh khi thi công móng cọc
- Phân bố tải trọng không hợp lý, dẫn đến nền móng chịu lực không đều.
- Bố trí cọc sai tiêu chuẩn kỹ thuật — khoảng cách giữa các cọc phải ≥ 3d (với d là đường kính hoặc cạnh cọc).
- Không ép hoặc đóng cọc đến đúng cao độ thiết kế, khiến khả năng chịu tải của móng bị giảm.
Những việc chủ nhà cần chuẩn bị trước khi xây móng cọc
Bên cạnh những công đoạn thuộc về kỹ thuật, chuyên môn, thi công, thiết kế móng cọc nhà dân, chủ nhà cần làm những công việc dưới đây để đảm bảo quá trình thiết kế, thi công móng cọc nhà dân diễn ra thuận lợi, suôn sẻ:
Lựa chọn đơn vị thi công móng uy tín và có kinh nghiệm
Với những đơn vị chuyên nghiệp, có hồ sơ năng lực rõ ràng giúp cho công trình bạn nhanh chóng đạt kết quả cao và bền vững theo thời gian. Các gia chủ nền tìm hiểu các đơn vị kỹ lưỡng thông qua người quen, người đã từng hợp tác hoặc nghiên cứu Web công ty để xem các dự án đã thực hiện,…

Ưu tiên chọn các doanh nghiệp cam kết giám sát, chịu trách nhiệm và bồi thường khi có lỗi từ phía thi công. Đồng thời, đơn vị đề xuất các phương án thi công tối ưu, phù hợp với công trình, có các chương trình ưu đãi, cam kết bảo trì chất lượng sau khi bàn giao công trình.
Chọn mua vật liệu xây dựng đạt chuẩn và có nguồn gốc rõ ràng
Lựa chọn nguyên vật liệu xây dựng cũng là một công đoạn cần chú ý vì nếu chọn những vật liệu giá rẻ nhưng chất lượng kém sẽ ảnh hưởng xấu tới độ bền và tính an toàn của công trình.Vì vậy, khi đơn vị thiết kế – thi công lên danh sách các nguyên vật liệu sẽ thi công và các đơn vị phân phối, gia chủ nên kiểm tra độ tin cậy của các bên đó.

Giám sát chặt chẽ để đảm bảo tiến độ và chất lượng thi công
Nếu thuê bên nhà thầu thi công, thiết kế trọn gói thì đã có giám sát viên của nhà thầu giám sát công trình, cam kết chất lượng và tiến độ thi công. Tuy nhiên, chủ nhà nên kiểm tra công trình định kỳ để trực tiếp quan sát và đánh giá chất lượng tổng thể.

Hy vọng, bài viết “Khám phá quy trình thiết kế móng cọc nhà dân chuẩn từ A – Z” sẽ hỗ trợ bạn trong quá trình bạn hiện thực hóa “tổ ấm” của mình. Để quá trình thiết kế móng cọc nhà dân được diễn ra một cách thuận lợi và hiệu quả nhất, các bạn có thể liên hệ công ty xây dựng nhà Uy Vũ để được tư vấn miễn phí và cung cấp các dịch vụ.
